首頁 > 房屋出售 > 誠昱/崇善商圈孝親裝潢車庫透天
第一房屋仲介 - 誠昱/崇善商圈孝親裝潢車庫透天

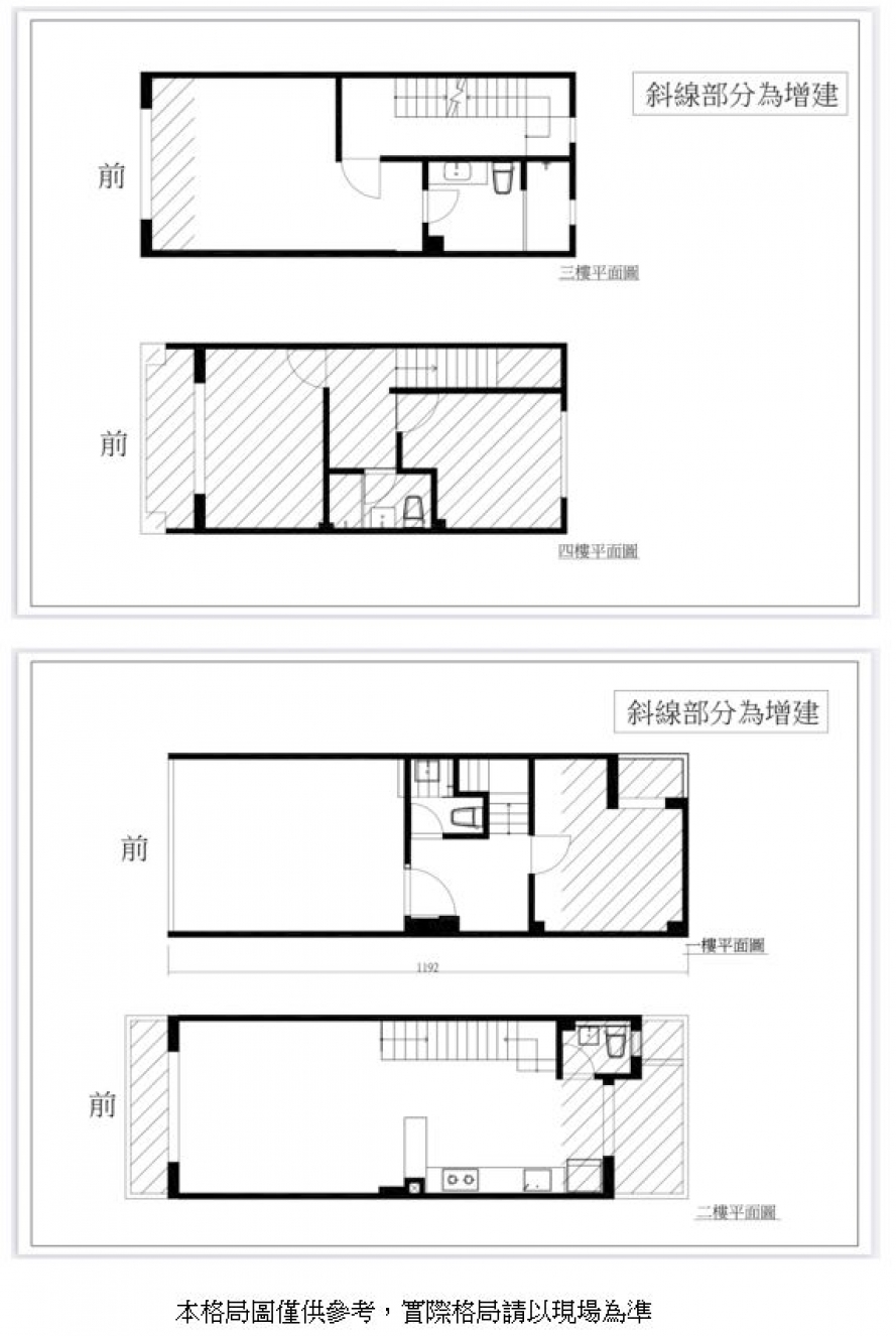
誠昱/崇善商圈孝親裝潢車庫透天

透天/別墅      1980萬

系統編號

物件區域
701台南市東區

物件地址
崇善十一街

地坪
17.84 坪

總建坪
33.39 坪

室內坪數
33.39 坪

主建物坪
33.39 坪

總樓層
3 樓

位於樓層
1~3 樓

格局
4房2廳4衛4陽台

採光面數
2 面採光

建物結構
鋼骨鋼筋混凝土(SRC)

建築完工
1979年 屋齡約47年

臨路寬度
約8 米路

鄰近市場
仁和市場

公園綠地
社區公園

特色說明
1.整棟重新整理+增建,實際使用
2.空間大幅提升,格局方正,動線佳
3.一樓孝親房+有天井+二樓延伸露台
4.屋內保有自然光,乾爽不潮溼
5.仁和商圈,生活機能完整,採買便利
6.崇善商圈近學區,外食方便,診所林立,生活便利滿分

※以上資訊如有記載錯誤,一律依謄本登記簿為準

 - 誠昱/崇善商圈孝親裝潢車庫透天
 - 誠昱/崇善商圈孝親裝潢車庫透天
 - 誠昱/崇善商圈孝親裝潢車庫透天
 - 誠昱/崇善商圈孝親裝潢車庫透天
 - 誠昱/崇善商圈孝親裝潢車庫透天
 - 誠昱/崇善商圈孝親裝潢車庫透天
 - 誠昱/崇善商圈孝親裝潢車庫透天
 - 誠昱/崇善商圈孝親裝潢車庫透天
 - 誠昱/崇善商圈孝親裝潢車庫透天
 - 誠昱/崇善商圈孝親裝潢車庫透天
 - 誠昱/崇善商圈孝親裝潢車庫透天
 - 誠昱/崇善商圈孝親裝潢車庫透天
 - 誠昱/崇善商圈孝親裝潢車庫透天
 - 誠昱/崇善商圈孝親裝潢車庫透天
推薦物件...

誠昱/佳里龍安段農地地上.

誠昱/佳里龍安段農地地上.
688 萬

誠昱/成大開元商圈好出租.

誠昱/成大開元商圈好出租.
1098 萬

誠昱/近新吉工業農地

誠昱/近新吉工業農地
2965 萬

誠昱/站前商業區雙城33.

誠昱/站前商業區雙城33.
1888 萬

誠昱/鹽水角窗全新電梯車.

誠昱/鹽水角窗全新電梯車.
2580 萬

誠昱/太乙工業區超值低總.

誠昱/太乙工業區超值低總.
2300 萬

誠昱/仁德中山路393坪.

誠昱/仁德中山路393坪.
11000 萬

誠昱/夏林整新3房樓寓1

誠昱/夏林整新3房樓寓1
638 萬


更多..
地圖
分享到臉書